livingarchstudio
Living Arch Studio
Projetos Residenciais
Projetos corporativos
Neuroarquitetura
Opções de projeto
Arquitetura como Arte
Projetos Experimentais
Insights
Sobre
Contato
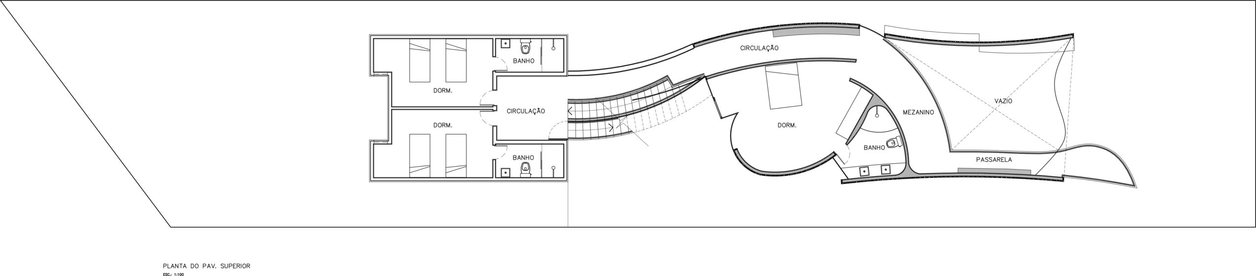
Residência JS
Residência JS
Projeto realizado em 2000.